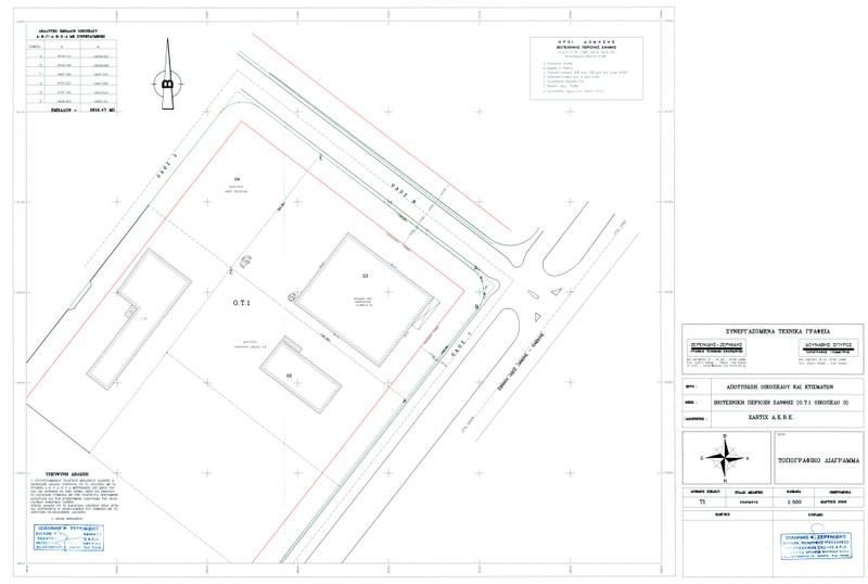
Η γωνιακή παρτίδα έχει συνολική έκταση 9618,47 τετραγωνικών μέτρων
με άμεση πρόσβαση και οπτική επαφή με τον επαρχιακό δρόμο Ξάνθης-Καβάλας
και απεχει περίπου 3 χλμ. από την πόλη της Ξάνθης (βασική Βιομηχανική Περιοχή Ξάνθη).
Είναι πλήρως περιφραγμένο με εσωτερικούς δρόμους και έκταση κτιριακων εγκαταστασεων,
με βιομηχανικό δάπεδο συνολικου εμβαδου 2898,35 τετραγωνικών μέτρων
.
Το εσωτερικό αποτελείται από τρεις αίθουσες (έκαστη επιφανειας 1000 τετραγωνικά μέτρα),
οι οποίες είναι διασυνδεδεμένες.
Το κτίριο διαθετει μια νέα μεταλλική στέγη με πάνελ αλουμινίου και μόνωση.
Η βιομηχανικη περιοχη ξανθης ειναι μια απο τις οργανωμενες περιοχες της Ελλαδος με προνομιακα πλεονεκτηματα.
Η εγκατασταση σε μια βιομηχανικη περιοχη εξασφακιζει η απροσκοπτη και ποιοτικη λειτουργεια της επιχειρησης σας,
σε ενα καθαρο, λειτουργικο και ορθολογικα οργανωμενο περιβαλλον, χωρις τα προβληματα μιας εκτος σχεδιου δομησης.
Προσθετα πλεονεκτηματα επενδυτων:
> Ευνοικοι οροι δομησης.
> Καθαροι τιτλοι ακινητων.
> Απαλλαγη απο διαδικασια εκδοσης αδειας εγκαταστασης(ν.2516/97 αρθρο 7 παρ. 5).
> Απαλλαγη απο το Α σταδιο περιβαλλοντικης αδειας αδειοδοτησης.
> Ειδικες προβλεψεις στα κινητρα ιδιωτικων επενδυσεων.
> Αναπτυξη συνεργιων εγκατεστημενων επιχειρησεων.
Για επιπροσθετες πληροφοριες και διευκρινησεις ειμεθα στην διαθεση σας.
| Τιμή ανά τ.μ. | € 345 |
|---|---|
| Περιοχή | Εύμοιρο (Ξάνθη) |
| Διεύθυνση | Βιομηχανικη περιοχη (67100) |
| Ζώνη | Οικιστική ζώνη |
| Χώροι | 3 |
| Όροφος | Ισόγειο |
| Έτος κατασκευής | 1973 |
| Επίπεδα | 1 |
| Θέση Στάθμευσης | Ναι |
Προγραμματίστε μία επίσκεψη στο ακίνητο ή ζητήστε μας να επικοινωνήσουμε μαζί σας για περισσότερες πληροφορίες. Η αίτηση δεν είναι δεσμευτική όσον αφορά στην επίσκεψή σας στο ακίνητο. Μόλις λάβουμε την αίτησή σας, θα επικοινωνήσουμε άμεσα μαζί σας.